Nou mòdul al CAP d’Argentona per a tasques covid

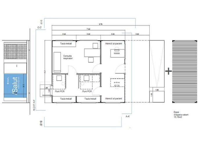
Comptarà amb dos punts per a realització de proves PCR, dues zones d'atenció al pacient i una consulta per atendre pacients respiratoris

Ahir es va iniciar la instal·lació d'aquest mòdul de suport que té com a objectiu facilitar el doble circuit covid i no covid en aquest centre de Primària. Entrarà en funcionament en els pròxims dies i s'utilitzarà per fer les proves PCR, tests ràpids, vacunacions covid, identificació de contactes, etc.

La COVID-19 ha suposat un important augment de feina als centres d'atenció primària, i molt d'ells no disposen d'espai suficient per fer un doble circuit per a pacients covid i no covid. Aquest mòdul permetrà separar aquests circuits i guanyar espais molt necessaris per treballar amb major seguretat, tant per als pacients com per als treballadors.

El mòdul, situat molt aprop de l'edifici principal, té 45 m2 i comptarà amb dos punts per a la realització de proves PCR, dues zones d'atenció al pacient i una consulta per atendre pacients respiratoris.

120 mòduls repartits per tot el territori. El mòdul que s'està instal·lant a Argentona és un dels 120 que el Departament de Salut té previst col·locar repartits per tota Catalunya, una xifra que podria ampliar-se en funció de les necessitats de cada territori. El desplegament d'aquestes estructures s'ha fet en espais propers als centres, en terrenys propis o cedits pels ajuntaments o altres institucions. El pressupost mitjà de construcció i equipament mèdic de cadascun dels mòduls ha estat d'uns 70.000 euros. La seva durada està prevista d'entre dos i quatre anys, segons cada cas i són gestionats pels mateixos equips d'atenció primària.

Els nous espais s'emmarquen en el Pla d'Enfortiment i Transformació de l'Atenció Primària, amb l'objectiu d'oferir més espai i confort a la ciutadana. Aquest compta amb una inversió global de gairebé 300 milions d'euros fins el 2022 i també preveu la contractació de nous professionals.